看了河南震兴武馆重大火灾事故调查报告,我翻开了规范
看了河南震兴武馆重大火灾事故调查报告,我翻开了规范

2021年6月25日,河南省柘城县远襄镇北街村739号(村民陈林1自建房)柘城县震兴国际搏击俱乐部(震兴武馆)发生重大火灾事故,造成18人死亡、11人受伤,直接经济损失2153.7万元。近日,这起火灾调查报告发布,4人被追究刑事责任,2名厅级干部、7名处级干部、22名科以下公职人员受到党纪政纪处理。
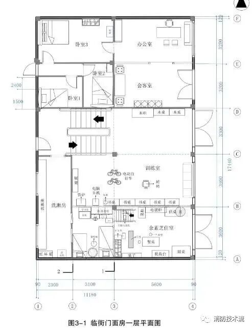
综合分析现场勘验、调查询问、监控视频和调查实验情况认定:起火部位位于震兴武馆临街门面房一层余素芝住室阁楼下层房间北部;起火原因系余素芝使用蚊香不慎引燃纸箱、衣物等可燃物所致。
1、建筑内未形成有效的防火分隔:起火房间(余素芝住室)与训练室之间的隔墙采用易燃的聚苯乙烯夹芯彩钢板,二层部分隔墙为钢龙骨双面石膏板墙,隔墙耐火等级低,一、二层之间的楼梯为敞开式楼梯,起不到有效的防火防烟分隔作用。 2、起火房间火灾荷载较大:起火房间使用夹芯彩钢板作为隔墙,放有家具、床上用品、衣物和大量杂物,着火后产生大量高温有毒烟气。高温有毒烟气经敞开式楼梯快速蔓延至二层学员集体宿舍,导致火势扩大。 3、火情发现晚:6 月 25 日 1 时 58 分,余素芝住室东侧卷帘门上部缝隙已经有烟气向外飘出。3 时 4 分,余素芝才发现着火。 4、初期处置不力:余素芝发现火情后,没有立即进行扑救,打开房门后,新鲜空气涌入,火势迅速扩大。周围群众使用盆、桶泼水和灭火器灭火,收效甚微。 造成人员伤亡主要原因 1、着火物产生大量高温有毒烟气:夹芯彩钢板和床上用品、衣物等着火物,燃烧后产生大量高温有毒烟气,造成人员因一氧化碳中毒、呼吸道热灼伤、创伤性休克伤亡。 2、违规集中住宿学员:震兴武馆在不具备安全条件的情况下,在临街门面房二层设置学员集体宿舍。 3、逃生通道不符合要求:震兴武馆一、二层之间仅有一部敞开式楼梯,火灾发生后,楼梯间迅速充满高温有毒烟气,二层住宿的学员难以通过楼梯逃生。二层西侧学员集体宿舍 4 个外窗均安装有防盗网,学员无法通过西侧外窗逃生。 有关规范要求 1、关于疏散楼梯 除与敞开式外廊直接相连的楼梯间外,宿舍建筑应采用封闭楼梯间。当建筑高度大于32m时应采用防烟楼梯间。 2、防火分隔 4、关于金属夹芯板 参考规范:《宿舍建筑设计规范》JGJ36-2016、《建筑设计防火规范》GB50016-2014(2018年版)
宿舍建筑内安全出口、疏散通道和疏散楼梯的宽度应符合下列规定:
1)每层安全出口、疏散楼梯的净宽应按通过人数每100人不小于1.00m计算,当各层人数不等时,疏散楼梯的总宽度可分层计算,下层楼梯的总宽度应按本层及以上楼层疏散人数最多一层的人数计算,梯段净宽不应小于1.20m;
2)首层直通室外疏散门的净宽度应按各层疏散人数最多一层的人数计算,且净宽不应小于1.40m;
3) 通廊式宿舍走道的净宽度,当单面布置居室时不应小于1.60m,当双面布置居室时不应小于2.20m;单元式宿舍公共走道净宽不应小于1.40m。
4) 宿舍建筑的安全出口不应设置门槛,其净宽不应小于1.40m,出口处距门的1.40m范围内不应设踏步。
(1)建筑中的防火墙、承重墙、楼梯间的墙、疏散走道隔墙、电梯井的墙以及楼板等构件,本规范均要求具有较高的燃烧性能和耐火极限,而不燃金属夹芯板材的耐火极限受其夹芯材料的容重、填塞的密实度、金属板的厚度及其构造等影响,不同生产商的金属夹芯板材的耐火极限差异较大且通常均较低,难以满足相应建筑构件的耐火性能、结构承载力及其自身稳定性能的要求,因此不能采用金属夹芯板材。
(2)对于非承重外墙、房间隔墙,当建筑的耐火等级为一、二级时,按本规范要求,其燃烧性能为不燃,且耐火极限分别为不低于0.75h和0.50h,因此也不宜采用金属夹芯板材。当确需采用时,夹芯材料应为A级,且要符合本规范对相应构件的耐火极限要求;当建筑的耐火等级为三、四级时,金属夹芯板材的芯材也要A级,并符合本规范对相应构件的耐火极限要求。
(3)对于屋面板,当确需采用金属夹芯板材时,其夹芯材料的燃烧性能等级也要为A级;对于上人屋面板,由于夹芯板材受其自身构造和承载力的限制,无法达到本规范相应耐火极限要求,因此,此类屋面也不能采用金属夹芯板材。
海湾安全技术有限公司主营:海湾消防报警系统销售报价,消防工程改造,气体灭火、电气火灾安装,售后安装维修,检测,调试,海湾消防网址:http://www.gsthwxf.com/;海湾服务热线:18910580194
推荐文章
- 海湾消防主机观察控制器显示:查看报警、故障及预警指示
- 海湾消防主机热敏打印机故障解决办法
- 海湾消防设备短路或接地故障导致控制器损坏之分析与防范
- 海湾消防通讯总线故障怎么解决
- 防火卷帘两侧的专用感温火灾探测器,跨越防火分区是否需设短路隔离器?
- 新规发布:学生宿舍必须安装火灾自动报警系统或具有联网功能的独立式火灾探测器!
- 气体探测器如何与防爆风机联动?
- 关于“海湾消防放气勿入指示灯故障,不能联动闪亮”问题的分析与改进建议
- 室内消火栓动压不达标该咋办?
- 【图解】海湾主机故障现象集合及维修处理经验分享






苏公网安备32058102002150号